| Prijs | € 1.100.000,- k.k. |
| Type object | Belegging, Woninginvesteringen |
| Perceeloppervlakte | 140 m² |
| Totale VVO | 255 m² |
| Aanvaarding | In overleg |
DE ACTIEVE MAKELAARS VAN RE/MAX TOONAANGEVEND MAKELAARDIJ HEBBEN WEER EEN UNIEK BELEGGINGSOBJECT TE KOOP! BEN JE OP ZOEK NAAR EEN PRIMA BELEGGINGS OF UITPONDINGSOBJECT OP EEN TOP LOCATIE? DAN HEEFT REMAX TOONAANGEVEND MAKELAARIJ DEZE VOOR JOU. INSTAPKLAAR BELEGGINGSPAND MET EEN HORECA (BTW) GEDEELTE OP BEGANE GROND EN 3 APPARTEMENTEN DIE IN VERHUURDE STAAT WORDEN VERKOCHT MET POTENTIE VOOR WAARDEGROEI IN DE TOEKOMST EN MOGELIJKHEID VOOR UITPONDING. WIL JE EEN VERRASSENDE BEZICHTIGING, VUL DAN HET CONTACTFORMULIER IN OP REMAXTOONAANGEVEND.NL! Gelegen in het centrum en dwaalgebied van Tilburg , aan de Tuinstraat 53 (horeca) en Antoniusstraat 42, 44 & 46 (appartementen) vind je dit aantrekkelijke beleggingsobject. Gebouwd in 1905 en appartementen gerenoveerd in 2012, biedt dit object een solide basis voor zowel verhuur als investering. Met een perceeloppervlakte van 140 m² en een energielabel A (voorlopig), combineert dit object ruimte en energie-efficiëntie. Het object is verhuurd wat het een stabiele en lucratieve investering maakt en is instapklaar. De ligging in het populaire dwaalgebied nabij het centraal station en centrum draagt bij aan de verhuurbaarheid en waarde van het pand. Kortom, de Tuinstraat 53 (horeca) en Antoniusstraat 42, 44 & 46 bieden een geweldige kans voor beleggers die op zoek zijn naar een stabiele verhuur met potentieel voor waardegroei in de toekomst. Deze woning combineert een uitstekende locatie met praktische voordelen, waardoor het een waardevolle toevoeging is aan elke vastgoedportefeuille.
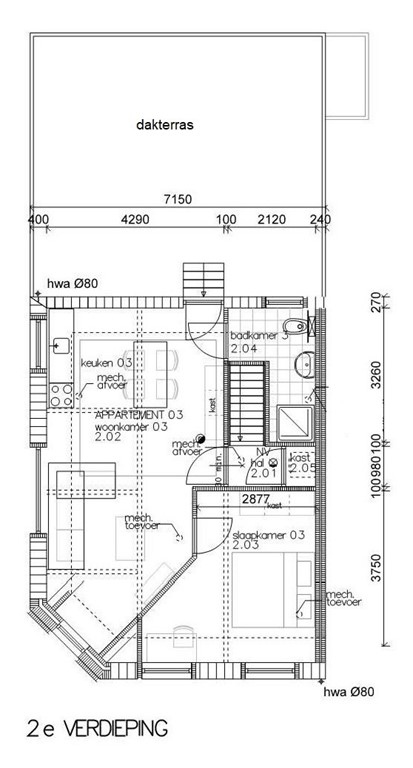
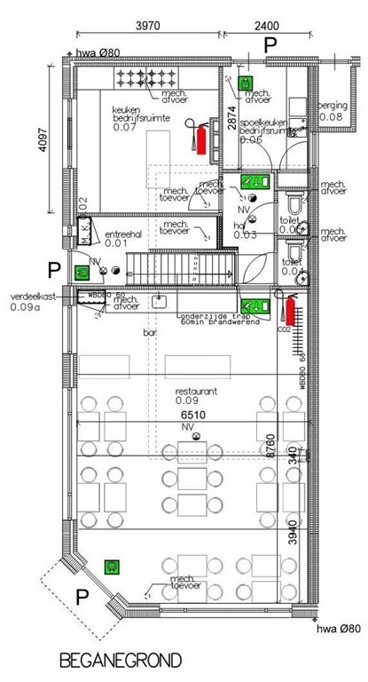
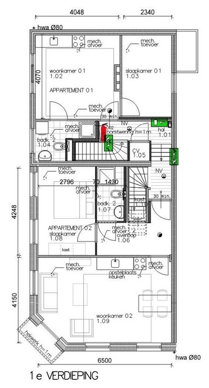
Dit beleggingsobject genereert een netto huurinkomsten van € 49.039,56 per jaar. De verhuurder brengt jaarlijks € 1.146,-- in rekening voor servicekosten, waaronder internet/tv, en € 7.020,-- voorschot voor gas, water en elektriciteit. -De Tuinstraat is een met btw verhuurd object; waardoor het onderhoud btw aftrekbaar is. -Huurwaarde upgrading mogelijk bij de 3 appartementen. -Permanente bewoning. -Horeca op begane grond Tuinstraat 53 (ca. 123 m²), energielabel A -Appartement eerste verdieping Antoniusstraat nr. 42 (ca. 31 m²), energielabel F -Appartement eerste verdieping Antoniusstraat nr. 44 met balkon aan voorzijde (ca. 47 m²), energielabel A -Appartement tweede verdieping Antoniusstraat nr. 46 met groot dakterras (ca. 57 m²), energielabel C -Wordt in verhuurde staat verkocht. -Mogelijkheid om in de toekomst per huisnummer uit te ponden!! -Object is voor onbepaalde tijd verhuurd. -Goed onderhouden object Genoemde maten en plattegronden zijn ter indicatie en daaraan kunnen geen rechten aan verbonden worden. Aanvaarding: per direct, in overleg. Neem snel contact met ons op en wellicht wordt dit jouw nieuwe droombelegging! Vul het contactformulier in voor een vrijblijvende bezichtiging: RE/MAX TOONaangevend makelaardij
| Referentienummer | 00885 |
| Vraagprijs | € 1.100.000,- k.k. |
| Rendement | 5% |
| Inrichting | Niet gestoffeerd |
| Inrichting | Niet gemeubileerd |
| Aanvaarding | In overleg |
| Aangeboden sinds | Dinsdag 21 oktober 2025 |
| Laatste wijziging | Dinsdag 4 november 2025 |
| Type object | Belegging, Woninginvesteringen |
| Soort bouw | Bestaande bouw |
| Bouwperiode | 1905 |
| Keurmerken | Brandveiligheid |
| Perceeloppervlakte | 140 m² |
| VVO | 255 m² |
| Ligging | Dichtbij openbaar vervoer In centrum In woonwijk Nabij treinstation |
| Lokale voorzieningen | Bank binnen 500 meter Geldautomaat binnen 500 meter Restaurant binnen 500 meter Winkel binnen 500 meter Supermarkt binnen 500 meter |
| Bereikbaarheid | Bushalte binnen 500 meter Treinstation binnen 500 meter |
| Kadastrale aanduiding | Tilburg M 6556 |
| Perceeloppervlakte | 140 m² |
| Omvang | Geheel perceel |
| Eigendomsituatie | Eigen grond |