Beschrijving

Uniek gelegen villa in rustige en groene omgeving in één van de mooiste wijken te Mol (Volmolen). 
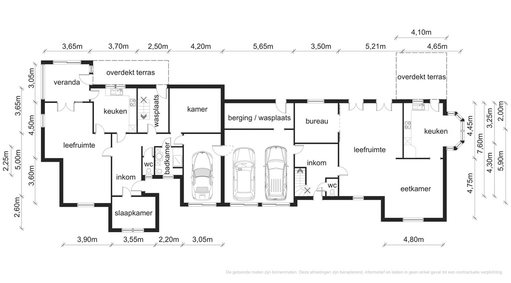
De woning is gelegen aan het uiteinde van de wijk, biedt 6 slaapkamers, 2 (tot 3) badkamers en een organisch aangelegde, westgeoriënteerde natuurtuin met eigen bos op een perceel van ca. 2.400m². 
De indrukwekkende woning (van maar liefst 498m² bewoonbare oppervlakte) is feitelijk verdeeld in een noordoost- en zuidwestvleugel die beiden als volwaardige leefvertrekken zijn ingericht (met elk eigen slaap- en badkamer, garage, bovenverdieping, etc.). 
Dit biedt niet alleen mogelijkheden tot kangoeroewoning, maar ook voor gebruik als kantoor (vrij beroep), (mantel)zorggedeelte of logies. 
Bovendien is bij het ontwerp rekening gehouden met de eventuele wens om beide vleugels eenvoudig met elkaar te verbinden tot één riante paleisvilla. 
Het geheel ligt op wandelafstand van natuurgebied 'De Belse Bossen' en tevens op enkele autominuten van zowel Geel en Mol als Balen en Meerhout. 
Alle voorzieningen (winkels, scholen, horeca) bevinden zich bovendien op korte afstand.

Gelijkvloerse verdieping
Via de inkomhal van het hoofdgedeelte (noordoostvleugel) met vestiairegedeelte en gastentoilet heeft u toegang tot de woonkamer en de garage. 
De leefruimte is verdeeld in een eetkamer (vooraan) en een salongedeelte (achteraan) en geniet van veel natuurlijk daglicht door de grote raampartijen die uitgeven op de tuin. 
Vanuit deze woonkamer met inbouwhaard (Flam-allesbrander) heeft u toegang tot een aangrenzende bureau- of studieruimte en de open leefkeuken. 
Het bureaugedeelte biedt mogelijkheden voor omvorming tot bibliotheekruimte.
In de lichtrijke keuken is een ontbijthoek voorzien en voldoende kastruimte. 
De keuken biedt uitzicht op de tuin en geeft uit op een sfeervol overdekt zonneterras.

De garage biedt 2 staanplaatsen en achterin een bergruimte waar ook aansluiting voor wasmachine is voorzien.

De tweede inkomhal biedt toegang tot de zuidwestvleugel (ook bereikbaar via de garage). 
In dit gedeelte van de villa bevindt zich een leefruimte, badkamer, 2 benedenslaapkamers (waarvan 1 thans dienst doet als bureauruimte), wasplaats, volledig ingerichte keuken en veranda.

Ook dit gedeelte is voorzien van een afzonderlijke garage met 1 staanplaats.

Tweede verdieping
Op de bovenverdieping van de noordoostvleugel, bereikbaar via de inkomhal met vaste houten trap, bevinden zich 4 slaapkamers (3 ruime kamers en 1 kinderkamer), een dressing en 2 badkamers (waarvan 1 nog afgewerkt dient te worden).

De bovenverdieping van de zuidwestvleugel (die bovendien eenvoudig te verbinden is met het noordoostdeel) is momenteel een riante - maar nog niet ingerichte - zolderruimte. 
Opnieuw eenvoudig om te vormen tot een multifunctionele ruimte, meerdere slaapkamers, hobbyruimte, etc.

Buitengebeuren
De woning biedt vooraan buitenparking voor 5 à 6 wagens. 
Aan de beide zijden van de woning bevinden zich groenstructuren en rechts een oostgeoriënteerd ochtendterras. 
Beide vleugels beschikken over ruime (overdekte) terrassen. 
Deze terrassen geven uit op een diepe, landelijke en private natuurtuin, ideaal georiënteerd op het Westen. 
U vindt er naast (groenblijvende en bloeiende) heesters zoals hortensia's, rododendrons ook imposante eikenbomen, Wilde wingerd, krentenboompjes, plataanbomen en krulwilg. Achteraan is er een denbosgedeelte.

Bijzonderheden
- EPC van 253kWh/m²/jaar: geen renovatieplicht
- Bewoonbare opp. van maar liefst 498m²
- Riant perceel op Westen van 2.387m²
- Ca. 60m straatbreedte en ruim 80m diepte
- CV met recente stookoliecondensatieketel

Neem zeker al eens een kijkje in de woning via het interactief grondplan: https://deboerenpartners.virtimmocontent.be/start-visit/5125

Kenmerken