Beschrijving

Uitzonderlijk gelegen, te renoveren kasteelvilla met o.a. 3 slaapkamers, carport, riante woonkamer en private doch open bostuin met uitkomst op achterliggende weilanden. 

Het geheel ligt op een perceel van ca. 2.785m² (woongebied met landelijk karakter), rustig gelegen op wandelafstand van Provinciaal Groendomein Prinsenpark en centrum Retie. 

De woning, van bouwjaar 1968, is van de hand van architect L.J. Verbist en vraagt enige opfrissing. 

De villa is gelegen in één van de meest gewilde buurten te Retie, Geenend, nabij sportfaciliteiten (Sportpark Vossekot: o.a. tennis), natuurgebieden, diverse fiets- en wandelroutes en eveneens vlakbij alle voorzieningen (warme bakker, supermarkten, restaurants, etc.) in het centrum van Retie. 

De villa is bovendien gelegen nabij Postel en de Nederlandse grens (autosnelweg E34: Eindhoven-Antwerpen).

Gelijkvloerse verdieping:
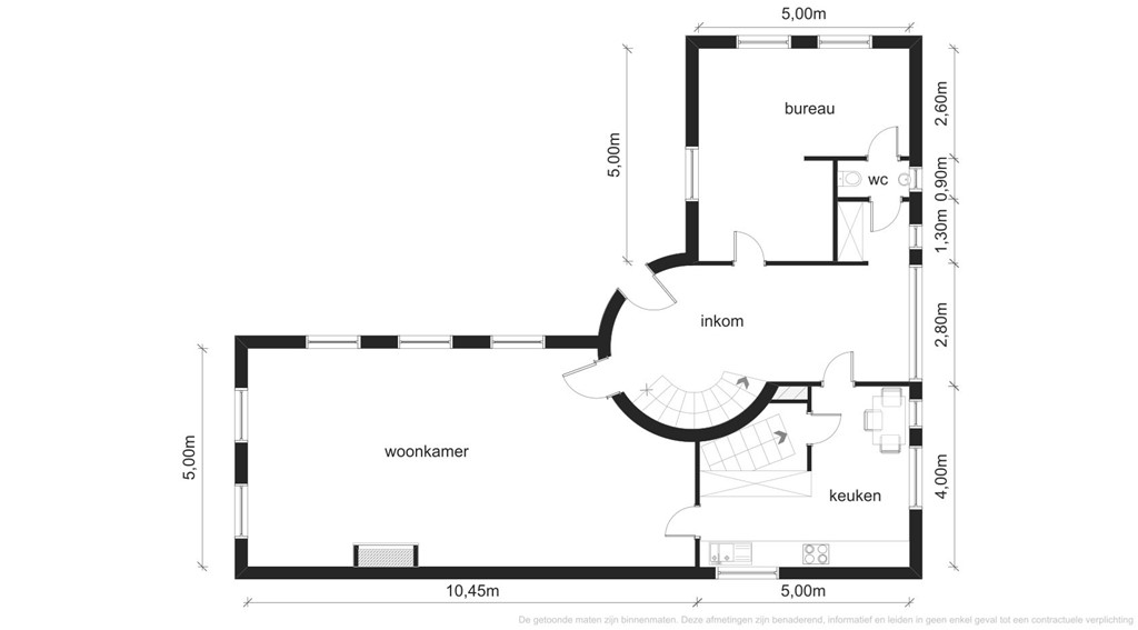
Via de elegante, geronde inkomhal met hardhouten wenteltrap op marmertegel heeft u toegang tot een gastentoilet, vestiaire, veranda, woonkamer en het bureaugedeelte. 

De leefruimte op eiken mozaïekparket beschikt over een nostalgische gietijzeren houtkachel (Nestor Martin) met fraaie marmeren schouwmantel. 
Deze woonkamer is verdeeld in een zitgedeelte (vooraan) en bargedeelte (achteraan) en geniet van veel natuurlijk daglicht door de grote raampartijen. 

Vanuit de leefruimte heeft u toegang tot de keuken met deur naar de riante kelderverdieping en het ondergronds garagegedeelte. 

De keuken is geïnstalleerd met volgende (recente en werkende) toestellen: inductiekookplaat (Novy), gasvuur, ijskast (Siemens), vaatwas (Miele), microgolfoven, heteluchtoven (Hilton) en voldoende kastruimte. In de keuken bevindt zich een ontbijtgedeelte en tevens de toegang naar het terras dat op zijn beurt leidt naar de tuin.

Eerste verdieping:
De vaste hardhouten wenteltrap in de inkomhal brengt u naar de eerste verdieping. 
Hier bevinden zich 3 ruime slaapkamers, allen op mozaïekparket, en de stijlvolle badkamer in travertin met ligbad, inloopdouche, een lavabo en een toilet.

De nachthal met vide is gerond en strekt zich uit over de bovenverdieping. 
Deze openheid zorgt voor een aangename doorstroom tussen de kamers op de bovenverdieping. 

In de tussenruimtes zijn steeds praktische opbergnissen of inbouwkasten geïntegreerd, wat zowel esthetiek als functionaliteit biedt

Buitengebeuren:
De woning heeft een oprit met poort aan de zijkant van de woning, een ondergrondse garage (1 staplaats) een ruime carport (2 staplaatsen) en een bungalow en tuinhok achteraan. 

Het ruime terras onder de veranda geeft uit op de diepe, landelijke en private tuin, georiënteerd op het noordwesten. 
U vindt er verschillende fruit- en notenbomen (perziken, nectarinen, peren, pruimen, vijgen, walnoten, beukennoten, hazelnoten, etc.) en een overdekt (enigszins verouderd) buiten-barbecuegedeelte.

De ligging is de absolute troef van dit villageheel: de ruime voortuin met ronde oprijlaan, de grastuin achteraan en de diepe bostuin die uitgeeft op agrarisch gebied bieden een uitstekende combinatie van rust en landelijkheid.

Bijzonderheden

- EPC van 653 kWh/m²/jaar: renovatieplicht
- Bewoonbare oppervlakte van 224m² exclusief kelder en zolder
- Volledig onderkelder: ruime stakelder en hoge kruipkelder
- CV op stookolie met radiatoren (Buderus) + houtkachel
- Dubbele beglazing: PVC en houten buitenschrijnwerk
- Zeer gunstige ligging op wandelafstand van centrum, scholen, natuur, wandel- en fietsroutes
- Uitzonderlijke villa ‘met een ziel’ in erg gewilde buurt te Retie, nabij Postel
- Renovatieproject met meerwaarde dankzij uitzonderlijke ligging

Kenmerken